Skip to main content
File #: HPB Reso 01-2017    Name:
Type: HPC Resolution Status: Passed
File created: 1/3/2017 In control: Historical Preservation Commission
On agenda: 1/18/2017 Final action: 1/18/2017
Title: Resolution to approve a COA Application for the Culp Block, 2420 West Main Street
Attachments: 1. HPB Resolution 01-2017, 2. COA Applicaton, 3. Cover Letter, 4. Approved COA - Front Face and Materials, 5. Approved COA - Front Facade wiht Adjoining Buildings and Rendering, 6. Approved COA - Rear Facade and Fence, 7. PHOTO - Unforseen Condition (1), 8. PHOTO - Unforseen Condition (2), 9. PHOTO - Storefront - Completed, 10. PHOTO - Center Door Without Column
Agenda Date: January 18, 2017

Subject:
Title
Resolution to approve a COA Application for the Culp Block, 2420 West Main Street
Body

Presented By:
Dennis Swain, Senior Planner


BACKGROUND:
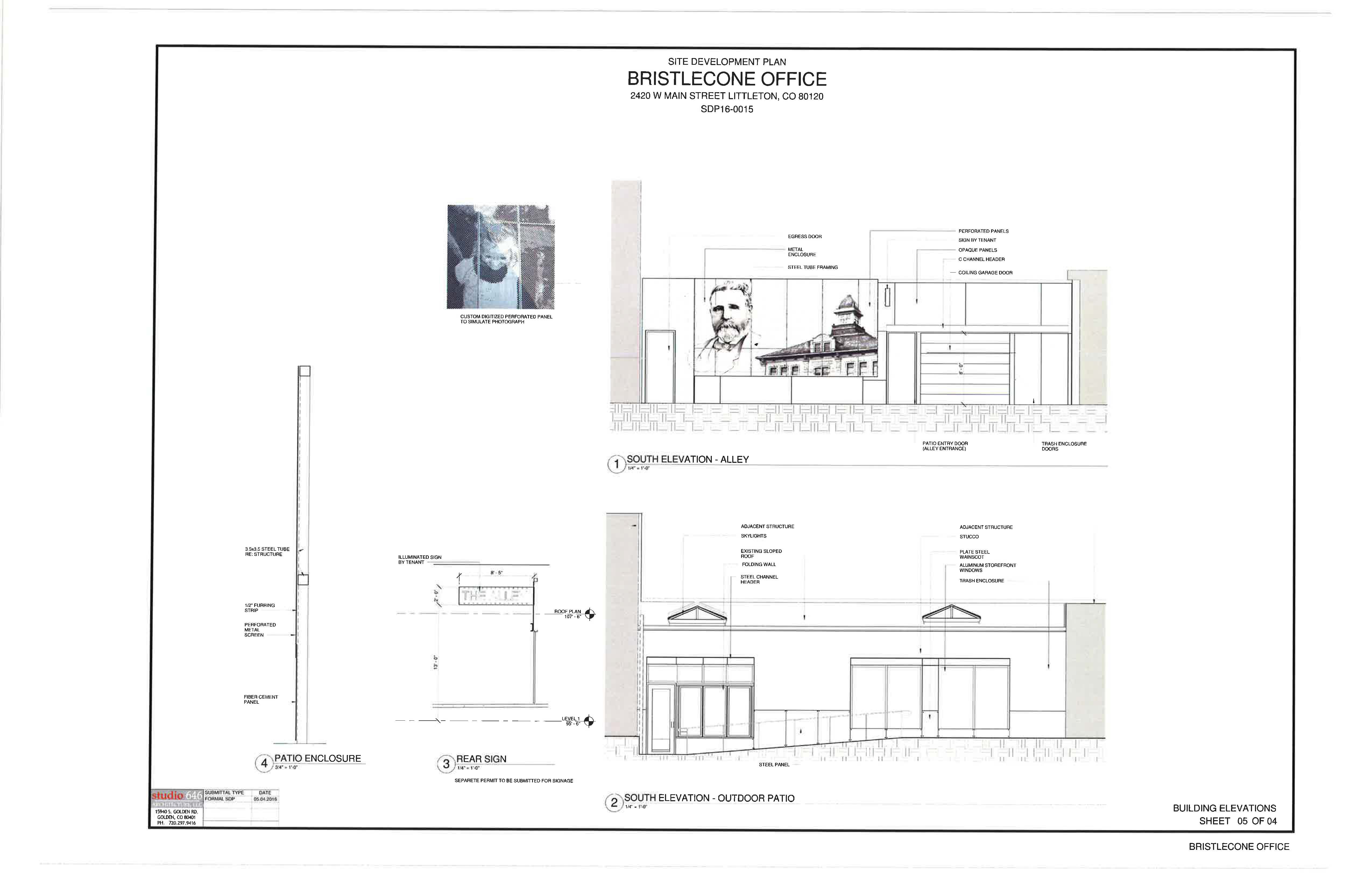
On July 18, 2016, the historical preservation board approved a Certificate of Historic Appropriateness (COA) for the replacement, reconstruction, and alteration of the front and rear facades of the portion of the Culp Block formerly occupied by Jose's Restaurant.

During construction, Bristlecone Construction, the owner and contractor for the project, discovered structural and functional issues that would not accommodate several details of the approved design of the facade. As the issues were discovered and alternatives discussed, Todd Donati, the owners' representative for Bristlecone, shared the information with Dennis Swain of the Community Development Department. The proposed changes appear to be necessary, appear to be the best and most reasonable solutions for maintaining the integrity of the approved design, and are consistent with the adopted design guidelines.

Because the construction process was on a short time frame, the cumulative effect of the as-built revisions warrant board review, and the COA review process could not be completed in time to meet that short construction time frame, the city issued a Temporary Certificate of Occupancy (TCO). The TCO will be converted to a permanent Certificate of Occupancy (CO) if the board approves a COA that reflects the as-built conditions.

City code does not have a provision for amending an approved COA. As a result, the project is being reviewed as a new COA, although the review is focusing only on the changes made to the design approved by the July 18, 2016, COA.

As construction progressed and more structural information surfaced, four revisions were made to the approved design.
1) The approved design for the front fa?ade incorporated a recently uncovered steel beam that was thought to be original to the bu...

Click here for full text